분진 폭발위험장소 구분
| Chapter #1 | Chapter #2 | Chapter #3 |
| 1. 분진 폭발 매커니즘 | 6. 용어의 정의 | 11. 방폭 전기기기 선정시 고려사항 |
| 2. 분진 폭발의 조건 | 7. 위험장소 구분 -누출원 | 12. 분진폭발 위험장소 |
| 3. 분진의특성 | 8. 위험장소 구분 - 위험장소 | 13. 분진폭발 위험장소의 설정 - CASE 1 |
| 4. 분진의 위험성 | 9. 위험장소 구분 - 등급 구분 | 14. 분진폭발 위험장소의 설정 - CASE 2 |
| 5. 적용범위 | 10. 분진 폭발위험장소 설정 절차 | 15. 분진폭발 위험장소의 설정 - CASE 3 |
| 16. 분진폭발 위험장소의 설정 - CASE 4 | ||
| 17. 분진폭발 위험장소 구분사례 | ||
| 18. 분진폭발 위험장소 시설관리 |

6. 용어의 정의
• 분진(Dust) : 가연성 분진과 가연성 부유물을 포함하는 포괄적인 용어
• 가연성 분진(Combustible dust) : 공기중부유할 수 있으며, 자주에 의해 침적될 수 있는 공칭 크기 500 μm 이하의 미세한 고체 입자로공기 중 연소 및 발염할 수 있고,대기압 정상 온도에서 공기와 폭발성 혼합기체를 형성할 수 있음
• 폭발성 분진 분위기(Explosive dust atmosphere) : 대기 조건 하에서 점화 후 자체적으로 화염전파가 진행되는 분진 또는 부유물 형태의가연성 물질과 공기와 혼합체
• 도전성 분진(Conductive dust) : 전기 고유저항이 10³ Ωm 이하인가연성 분진
• 비도전성 분진(Non-conductive dust) : 전기 고유저항이 10³ Ωm 을 초과하는 가연성 분진
• 가연성 부유물 : 공기 중에 부유하며, 대기상태에서 자중에 의해 침적될 수 있으며, 공기 중에서 연소되고 정상압력, 온도조건의 대기 중에서 공기와 폭발성 혼합물을 형성하는 공칭지름 500μm 를 초과하는 고상입자(섬유 포함)
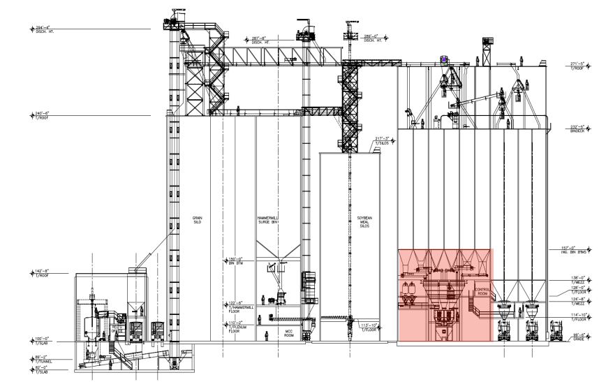
• 위험장소(분진) : 가연성 분진이분진운의 형태로 다량으로 존재하지 않아, 건설, 설치 및 사용에 특별한 주의를요하지 않는장소
• 분진 격납용기 (Dust containment) : 가연성 분진이 주위 대기로 누출되는 것을 막을 필요가 있는, 내부에서 분진을 취급, 처리, 운송 및 저장하기 위한 공정기기의 하우징
• 분진 누출원(Source of dust release) : 가연성 분진이 대기로 누출될 수 있는 지점이나 장소
• 지속 누출등급 : 지속, 빈번 또는 장기간 발생할 것으로 예상되는 누출
• 1차 누출등급 : 정상작동 조건하에서 주기적 또는 간헐적으로 발생할 것으로 예상되는 누출
• 2차 누출등급 : 정상작동 조건하에서 발생하지 않을 것으로 예상되며, 만약 발생하더라도 드물거나 짧은 기간만 지속되는 누출
• 위험장소의 범위(Extent of zone) : 누출원으로부터 모든 방향으로 누출과 관련된 위험이 더 이상 존재하지 않는 것으로 간주되는 지점까지의 거리
7. 위험장소 구분 - 누출원
• 연속 누출등급 : 분진운이 지속적 또는 오랜기간 존재할 것으로 예측되거나, 짧은 기간 존재하나 빈번히 발생하는 장소
• 1차 누출등급 : 정상작동조건에서 주기적 또는 자주 발생할 것으로 예측될 수 있는 누출. 예를 들면, 포대를 채우거나 비우는 장소 주변
• 2차 누출등급 : 정상작동조건에서는 누출이 발생하지 않을것으로 예측되며, 발생하더라도 아주 드물게, 짧은동안만 지속되는 누출. 예를 들면, 분진 퇴적물이 존재하는 분진취급 플랜트 내부
| 분진의 존재 | 분진운의 위험장소 구분 |
| 연속 누출등급 | 20종 장소 |
| 1차 누츨등급 | 21종 장소 |
| 2차 누출등급 | 22종 장소 |
8. 위험장소 구분 - 위험장소
• 20종 장소 : 공기 중에 가연성 분진운의 형태가 연속적, 장기간 또는 단기간 자주 폭발분위기로 존재하는 장소
• 21종 장소 : 공기 중에 가연성 분진운의 형태가 정상 작동 중 빈번하게 폭발 분위기를 형성할 수 있는 장소
• 22종 장소 : 공기 중에 가연성 분진운의 형태가 정상작동 중 폭발 분위기를 거의 형성하지 않고, 만약 발생한다 하더라도 단기간만 지속될 수 있는 장소
9. 위험장소 구분 - 등급구분
- 0(20)종, 1(21)종, 2(22)종의 폭발 위험 장소
| 구 분 | 정 의 | 적용 예 | 구 분 | 정 의 | 적용 예 |
| 0 종 장소 | 위험분위기가 지속적 또는 장기간 존재하는 장소 | - 용기 내부 - 장치 및 배관 내부 |
20종 장소 | 정상상태에서 위험분위기가 형성될 수 있는 분진운이 지속적으로 존재하거나 제어가 불가능할 정도의 분진층이 형성되는 장소 | - 분진내내지역의 내부 - 분진발생 장치 및 이송배관 내부 - 분진발생설비 외부이나 배기 및 청소의 부족으로 분진층 및 분진운 형성 지역 |
| 1 종 장소 | 정상상태에서 위험분위기가 존재하기 쉬운 장소 | - 0종 장소 주변 - 송, 급기구의 주변 - 운전상 개방 연결부의 주변 - 배기관의 유출구 주변 - 피트, 트렌치 등 이상상태 시 위험분위기가 장시간 존재하는 장소 |
21종 장소 | 정상운전 및 보수과정에서 분진운이 형성되거나 형성될 우려가 있는 지역중 20종 장소 외부의 장소 | - 분말을 채욱나 비우는 곳의 인근지역 - 22종 장소중 분진축적의 제거가 보장되지 않는 지역 |
| 2종 장소 | 이상상태 하에서 위험분위기가 단시간 존재할 수 있는 장소 | - 0종 또는 1종 장소 주변 - 용기, 장치 연결부 주변 - 펌프의 sealing 주변 - 안전밸브 배출구 주변 |
22종 장소 | 정상상태에서 분진운이 드물게 단시간 존재하거나 이상 상태에서 분진층이 존재할 수 있는 장소 중 21종 외부의 장소 | - 분진이 누출되어 축적될 수 있는 분진내 재설비 인근지역 |
1) 20종 장소의 예시 :
· 분진 격납용기의 내부
· 호퍼, 사일로, 사이클론과 필터 등
· 밸트나 체인 컨베이어의 일부를 제외한 분진 운반 시스템 등
· 분쇄기, 제분소, 건조기, 분진을 포대에 담는 설비 등
2) 21종 장소의 예시 :
· 분진 격나뵹기의 외부로 내부에 폭발성 분진 분위기가 존재할 때 운전상 목적으로 빈번히 여닫아야 하는 점검문의 바로 인근
· 포대를채우거나 비우는 주변, 이송 밸트, 샘플링 지점, 트럭의 덤프지점, 벨트 컨베이어의 하역지점 등 폭발성 분진 분위기의 생성을 방지할 수단을 강구 할 수 없는 곳
· 가공공정에 기인한 분진이 쌓일 수 있는 분진격납용기의 외부 지역으로, 분진층이 교란되어 폭발성 분진 분위기를 형성할 가능성이 높은 곳
· 폭발성 분진 분위기가 발생할 수 있는 (하지만 지속적이지 않고 오랜 기간 지속되지 않으며, 빈번하지도 않은) 분진 격납용기의 내부, 에를 들면 사일로 (가끔 채워지거나 비워지는)와 자체 청소 주기가 긴 필터의 더러운 쪽 등
3) 22종 장소의 예시 :
· 고장시 폭발성 분진 분위기를 배출할 수 있는백 필터 벤트의 배출구
· 드물게 개방하는 설비 인근 장소 또는 경험상 누출점으로부터 분진이 용이하게 분출되어 나올 수 있는 설비 인근 장소로서 이러한 예로 손상의 우려가 있는 공압설비나 플렉시블 커넥터 등이 있음
· 분진상의 제품을 담은 포대의 저장장소. 작업 중 포대가 터지면 분진 누출이 유발됨
· 보통 21종 장소로 분류되나 폭발성 분진 분위기가 형성되는 것을 방지하기 위한 배기장치 등의 조치가 적용되어 등급이 22종 장소로 낮아질 수 있는 장소. 이러한 조치는 포대를 채우고 비우는지점, 이송밸트, 샘플링 지점, 트럭의 덤프지점, 벨트 컨베이어의 하역지점 등의인근에 적용하는 것이 좋음
· 통제 가능한 분진층이 쌓인 장소로 분진이 부유하게 되면 폭발성 분진 분위기를 형성할 수 있는 장소. 위험한 분진 분위기가 형성될 수 있기 전에 청소로 분진층을 제거하는 경우에만 해당 장소는 비위험장소로 지정될 수 있음. 이것이 시설관리가 중요한 이유임.
10. 분진 폭발위험장소 설정 절차

'Technical > 방폭기술설비' 카테고리의 다른 글
| 방폭구조 선정 및 종류 (5) | 2024.01.29 |
|---|---|
| 분진 폭발위험장소 구분 – Chapter #3 (8) | 2024.01.28 |
| 분진 폭발위험장소 구분 - Chapter #1 (69) | 2024.01.06 |
| 폭발위험장소 관계 법령 및 기준 (79) | 2023.12.30 |
| 분진폭발 방지 대책 (66) | 2023.12.26 |
댓글